【外観】
-
バストイレ別
-
室内洗濯機置場
-
TVモニタ付きインターホン
-
浴室乾燥機

庭
キッチン
リビング
その他
玄関- 保証金
- 0ヶ月
- 敷引 / 償却
- - / -
- 敷金積み増し
- -
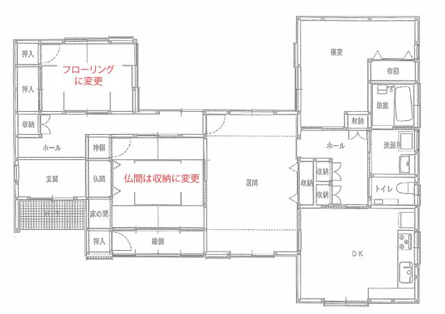
- 間取り / 詳細
- 3LDK
和室 10.0帖/和室 6.0帖/L 12.0帖/DK 10.0帖/洋室 10.0帖 - 向き
- 南
- 建物面積
- 115.93㎡
- バルコニー
(テラス)面積 - -
- 階建て
- 1階建
- 建物構造
- 木造
- 築年月
- 1965年4月(築60年)
- 種別
- 一戸建て
- 保険会社 / 料金
- 有 / -
- 保証会社 / 料金
- 必加入 / 日本セーフティー
初回50%、月額800円 ※引落手数料330円 - 駐車場
- 有(2台) 0円
- 現況
- 居住中
- 入居可能時期
- 相談
- その他条件
- 修繕費:33万6,000円
- 設備条件
-
- ペット相談 / リノベーション済 / 室内洗濯機置場 / フローリング / 公営水道 / オール電化 / 電気有 / 駐車2台可 / IHクッキングヒーター / 食器洗い乾燥機 / システムキッチン / バス・トイレ別 / 浴室乾燥機 / シューズボックス / TVモニタ付インターホン / 複層ガラス / 角部屋
- リノベーション
-
-
2014年4月
交換 : キッチン・お風呂・洗面台・トイレ・建具・複合ガラス 張替 : 外壁(ガルバニュウム鋼板)・床・クロス 新規設置 : 太陽光パネル(蓄電池)・耐震補強・高断熱・玄関造作など - 契約期間
- 2年
- 賃貸区分
- 一般
- 更新料
- -
- 更新事務手数料
- -
- 総戸数
- 1戸
- 特優賃
- -
- 取引態様
- 専任媒介
- 物件番号
- 98973967
- 管理コード
- -
- 情報更新日
- 2025年12月15日
- 次回更新予定日
- 2025年12月22日
- 取扱会社
-
- ピタットハウス北岡崎店
- 愛知県岡崎市葵町7-11 2階
- TEL:0564-73-7555
- 愛知県知事 (4) 第20537号
・ 宅地建物取引士・ 賃貸不動産経営管理士・ サブリース建物取扱主任者・ 保険募集人資格・ 不動産キャリアパーソン・ 空き家マイスター - ・公益法人 愛知県宅地建物取引業協会・賃貸不動産管理業協会・公益法人 全国宅地建物取引業保証協会・ピタットハウスネットワーク株式会社・公益法人 中部圏不動産流通機構・東海不動産公正取引協議会 公正競争規約加盟店・岡崎商工会議所・岡崎法人会・不動産クラブ・おかざき相談隊
- 備考
- エアコンが設置されている物件です。室内設備は浴室乾燥機・食器洗乾燥機などが揃っているので、快適に過ごしやすいお部屋になります。収納はシューズボックス・クロゼットなど豊富なので、衣類や履き物の整理がしやすく便利です。当社イチオシの物件の「美合町本郷戸建」。ぜひ一度ご覧ください。お客様が素敵な新生活を送れるように、岡崎市に特化した営業を続けてきた当社スタッフがお住まい探しをサポート致します。
-
コンビニエンスストア
ミニストップ 岡崎美合店
377m(5分)
-
小学校
岡崎市立緑丘小学校
696m(9分)
-
幼稚園
緑丘保育園
900m(12分)
-
コンビニエンスストア
ファミリーマート岡崎緑丘店
927m(12分)
-
その他
マックハウス 岡崎緑丘店
1213m(16分)
-
幼稚園
竹の子幼稚園
1227m(16分)
-
中学校
岡崎市立竜南中学校
1257m(16分)
-
ドラッグストア
V・drug美合店
1312m(17分)
-
郵便局
岡崎美合郵便局
1318m(17分)
-
ショッピングセンター
イオンタウン岡崎美合
1623m(21分)
-
デパート
ドミー美合店
1701m(22分)
-
ドラッグストア
Vドラッグ美合店
1766m(23分)
-
ショッピングセンター
ウイングタウン岡崎
2086m(27分)
-
ガソリンスタンド
Jセルフ美合SS/あいち三河
2110m(27分)
-
高校
愛知県立岡崎東高等学校
2149m(27分)
-
歯科
光ケ丘歯科
2239m(28分)
-
総合病院
光ヶ丘クリニック
2246m(29分)
-
小学校
岡崎市立美合小学校
2271m(29分)
-
整骨院
くま接骨院
2316m(29分)
-
その他
バースデイ 美合店
2421m(31分)
物件の特徴
セールスポイント
家具・家電の利用交渉可能。省エネ・耐震改修済・リノベーションにて大変身。オール電化(蓄電池)で、建具設備はまだまだキレイ。和室床をフローリング変更・玄関横の和室は仏間を収納に変更。駐車場スペースは2台分造成。大型犬など、屋外であれば要相談。室内は小型犬のみ。エアコン・TV残置。庭は広々南向き、周りは自然が多いですが、ちょっと走れば買い物も、駅もあり、ペットを居住や子育てには良い環境です。
ポイント
太陽光発電システム ペット相談 シューズボックス バストイレ別 浴室乾燥機
担当者のコメント
パノラマ画像
基本情報
設備条件
その他
周辺施設
近隣の物件
美合町本郷戸建
16.8万円
-
3LDK(115.93㎡)

















勝又 あさみ